PLANIMETRIA GENERALE

1: Piazzola del cancello; 2: Viale con parcheggi per gli ospiti e colonnine di servizio; 3: Terrazza frontale e piazzale principale; 4: Fabbricato principale; 5: Giardino; 6: Parcheggio abitanti; 7 Parcheggio ospiti; 8. Padiglioni; 9: 5 locali seminterrati; 10: Forno; 11: Locale carrabile; 12: Locale rimessa moto; 13: Locale valvole idrauliche; 14: Strada di accesso alla collina
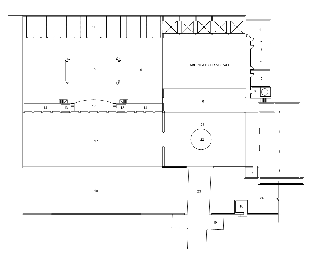
SISTEMAZIONI ESTERNE

1: Cantina; 2: Deposito attrezzi; 3: Centrale termica; 4: Cantina; 5: Dispensa; 6: Forno a legna; 7: Locale carrabile; 8: Terrazza frontale; 9: Giardino; 10: Pista da ballo; 11: Pergolato; 12: Palcoscenico; 13: Locali tecnici; 14: Zone rialzate e pavimentate; 15: Locale rimessa moto; 16: Locale valvole idrauliche; 17: Parcheggi degli abitanti; 18: Parcheggi degli ospiti; 19: Parcheggi del viale; 20: Locale padiglioni; 21: Piazzale; 22: Aiuola; 23: Viale; 24: Parcheggi degli ospiti e strada alla collina
COLLEGAMENTI ALLE ALTRE PAGINE DEL SITO
Planimetrie: Fabbricato principale Alloggi Altre costruzioni
Foto: Esterni Giardino Piano terra Piano primo Piano secondo Altri locali