PIANO TERRA

1: Terrazza frontale; 2: salone; 3: Saletta nord-est; 4: Saletta centrale; 5: Saletta Nord-ovest; 6: Servizi igienici uomini; 7: Servizi igienici donne; 8: Locale lavatrici; 9: Servizio igienico; 10: Alloggio della persona di servizio; 11: Office; 12 Cucina; 13: Anticamera; 14: Ufficio: 15: Padiglioni; 16: Camminamento a cielo aperto; 17: Deposito attrezzi; 18: Centrale termica; 19: Cantina; 20: Dispensa; 21: Forno a legna; 22: Giardino; 23: Cantina
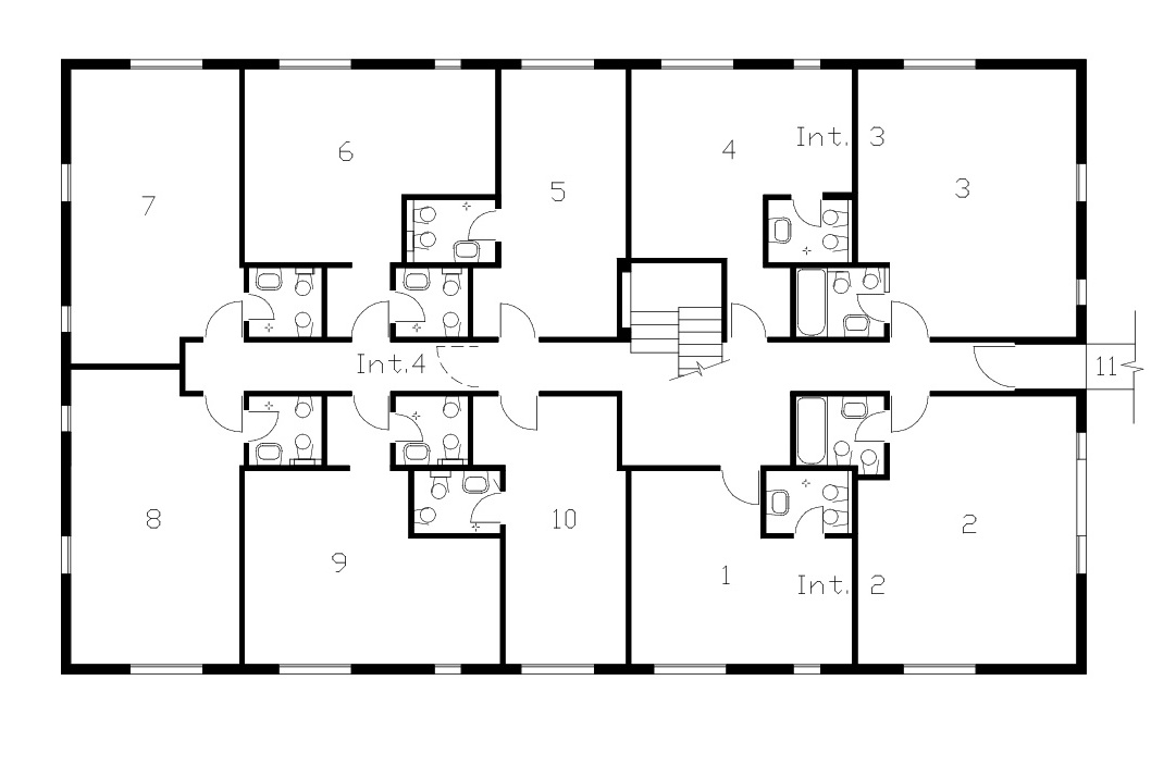
PIANO PRIMO

1: Alloggio A01; 2: Alloggio A02; 3: Alloggio A03; 4: Alloggio A04; 5: Alloggio A05; 6: Alloggio A06; 7: Alloggio A07; 8: Alloggio A08; 9: Alloggio A09; 10: Alloggio A10; 11: Passerella alla piazzola sud-ovest
PIANO SECONDO

1: Alloggio B01; 2: Alloggio B02; 3: Alloggio B03; 4: Alloggio B04; 5: Alloggio B05; 6: Alloggio B06; 7: Alloggio B07; 8: Alloggio B08; 9: Alloggio B09; 10: Alloggio B10; 11: Balconcino
PIANO TERZO

1: Torrino scala con l'inverter dell'impianto fotovoltaico; 2: Terrazza della copertura; 3: Cavedio canne di esalazione; 4: Pannelli fotovoltaici
PIANO QUARTO

1: Terrazza; 2: Copertura cavedio
COLLEGAMENTI ALLE ALTRE PAGINE DEL SITO
Planimetrie: Esterni Alloggi Altre costruzioni
Foto: Esterni Giardino Piano terra Piano primo Piano secondo Altri locali